
Information about the New Fire Hall
Construction Progress Reports
- Progress Report – February 22, 2023
 - Progress Report – August 17, 2023
 - Progress Report – September 30, 2023
 - Progress Report – October 31, 2023
 - Progress Report – November 30 2023
 - Progress Report – December 31 2023
 - Progress Report – January 31, 2024
 - Progress Report – February 29, 2024
 - Progress Report – March 31, 2024
 - Progress Report – April 30, 2024
 - Progress Report – May 31, 2024
 - Progress Report – June 30, 2024
 - Progress Report – July 31 2024
 - Progress Report – August 31, 2024
 - Progress Report – September 30, 2024
 - Progress Report – October 31, 2024
 - Progress Report – November 30, 2024
 - Progress Report – December 31, 2024
 
- Progress Report – January 31, 2025
 - Progress Report – February 28, 2025
 - Progress Report – March 31, 2025
 - Progress Report – April 30, 2025
 - Progress Report – April 30, 2025
 - Progress Report – May 31, 2025
 - Progress Report – June 30, 2025
 - Progress Report – July 31 2025
 - Progress Report – August 31 2025
 - Progress Report – September 30 2025
 
Articles
- 2025-09-10 Driftwood New Fire Hall Site Tour
 - 2025-07-02 Driftwood New Fire Hall Photo
 - 2024-11-27 Driftwood Fire Hall Tour
 - Driftwood Sep. 11 2024 Concrete Pour
 - Driftwood July 24 2024 Permit Delays
 - Driftwood Feb. 14 2024 Project Update
 - Driftwood Nov 1 2023 Groundbreaking
 - Groundbreaking Event Oct. 30 2023 Invitation
 - Driftwood Editorial Aug. 16 2023
 - New Fire Hall Project On Track Media Release dated Aug 11 2023
 - Driftwood July 4 2022 Referendum passed
 - Awards Contracts Press Release
 
Town Hall Presentations
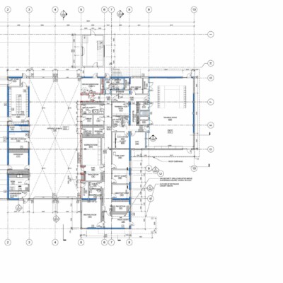
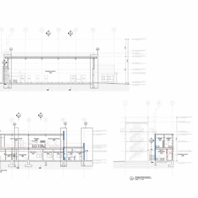
Architect Plans
Photo Gallery
Construction Progress
New Fire Hall Groundbreaking Event on Monday, October 30th at 3:30 p.m.
Fire Chief Jamie Holmes, CRD Director Holman,MP Elizabeth May and Makayla Joe-George of the Stqeeye’ Learning Society
The Salt Spring Island Fire Rescue Society is fundraising for a new museum!
Each year, we get hundreds of visitors to our 1926 Republic fire truck and participate annually in the “Light Up Salt Spring” shows. With the Ganges Fire Hall move, we are building a new museum that will showcase the Old Republic in all its historic glory.




































