
Information about the New Fire Hall
Construction Progress Reports
- Progress Report – February 22, 2023
- Progress Report – August 17, 2023
- Progress Report – September 30, 2023
- Progress Report – October 31, 2023
- Progress Report – November 30 2023
- Progress Report – December 31 2023
- Progress Report – January 31, 2024
- Progress Report – February 29, 2024
- Progress Report – March 31, 2024
- Progress Report – April 30, 2024
- Progress Report – May 31, 2024
- Progress Report – June 30, 2024
- Progress Report – July 31 2024
- Progress Report – August 31, 2024
- Progress Report – September 30, 2024
- Progress Report – October 31, 2024
- Progress Report – November 30, 2024
- Progress Report – December 31, 2024
- Progress Report – January 31, 2025
- Progress Report – February 28, 2025
- Progress Report – March 31, 2025
- Progress Report – April 30, 2025
- Progress Report – April 30, 2025
- Progress Report – May 31, 2025
- Progress Report – June 30, 2025
- Progress Report – July 31 2025
- Progress Report – August 31 2025
- Progress Report – September 30 2025
- Progress Report – October 2025
- Progress Report – November 2025
- Progress Report – December 2025
- Progress Report – January 2026
- Progress Report – February 2026
- Progress Report – March 2026
- Progress Report – April 2026
Articles
- New Firehall Operational May 15, but Celebration Delayed
- 2025-12-10 Driftwood New Fire Hall Site Tour and Opening Event
- 2025-09-10 Driftwood New Fire Hall Site Tour
- 2025-07-02 Driftwood New Fire Hall Photo
- 2024-11-27 Driftwood Fire Hall Tour
- Driftwood Sep. 11 2024 Concrete Pour
- Driftwood July 24 2024 Permit Delays
- Driftwood Feb. 14 2024 Project Update
- Driftwood Nov 1 2023 Groundbreaking
- Groundbreaking Event Oct. 30 2023 Invitation
- Driftwood Editorial Aug. 16 2023
- New Fire Hall Project On Track Media Release dated Aug 11 2023
- Driftwood July 4 2022 Referendum passed
- Awards Contracts Press Release
Town Hall Presentations
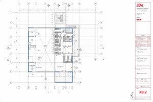
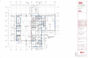
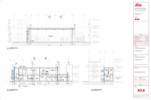
Architect Plans
Photo Gallery
Construction Progress
New Fire Hall Groundbreaking Event on Monday, October 30th at 3:30 p.m.
Fire Chief Jamie Holmes, CRD Director Holman,MP Elizabeth May and Makayla Joe-George of the Stqeeye’ Learning Society


























































